2020 REHAB on this Spacious Single Family Home that Lives Like a 2-Flat
/3552 W Evergreen Ave, Chicago, IL 60651
Offered at $445,000
8 Beds | 3 Baths | Heart of Humboldt Park | 2020 Rehab
About This Home | Video Tour Link
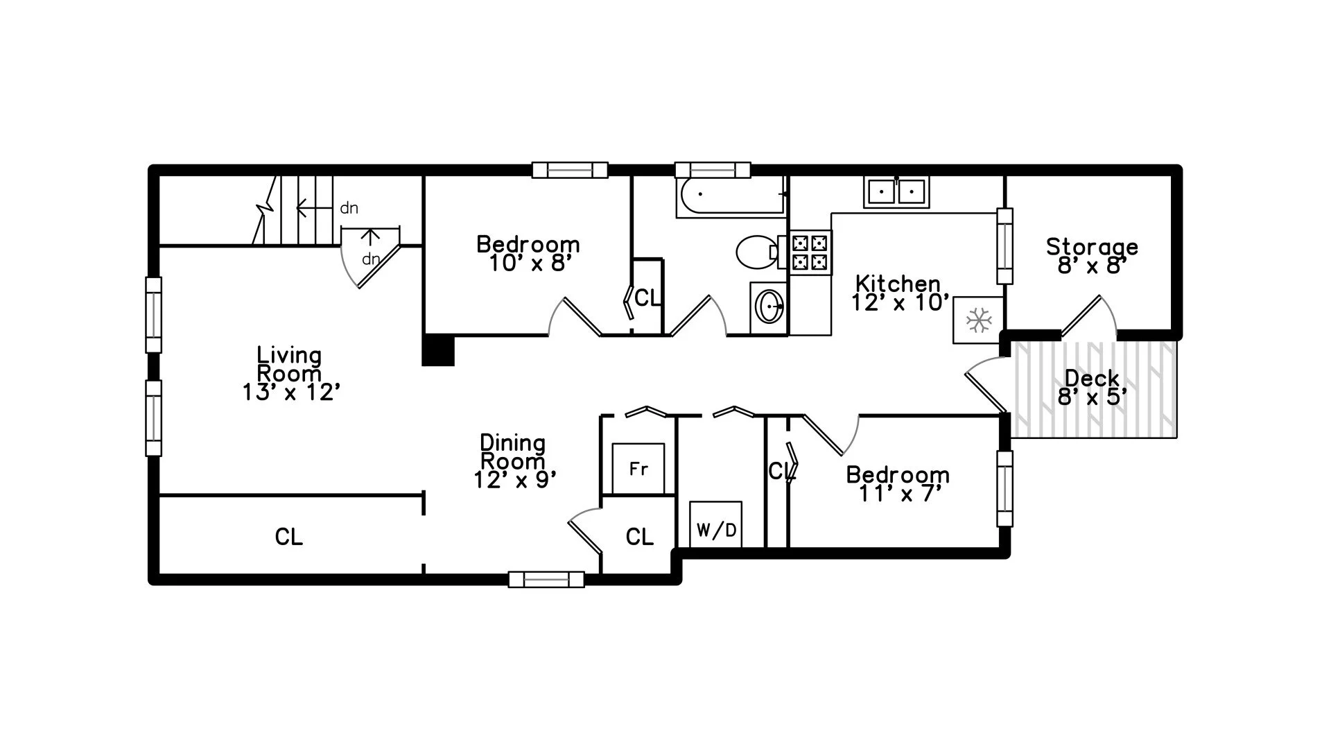
COMPLETE 2020 REHAB on this spacious Single Family Home that lives like a 2-Flat with 2 separate floors with their own meters, kitchens, laundry, & private decks in the Heart of Humboldt just 4 blocks from the Park! This unique Brick Bungalow is ready for immediate occupancy with 2nd floor in-law unit rented month-to-month for $1,300. The 1st floor, duplex-down features a total of 6 bedrooms and 2 full bathrooms with a 3/1 on each floor connected by a beautiful spiral stairs case along with 2 family room/living room areas, extra storage throughout, a back deck, HVAC Central AC, and In-Unit Washer & Dryer along with (3) separate Front, Rear, & Basement entrances. The Upstairs, 2nd floor is a 2 bedroom and 1 bathroom with an open living room/dining room concept, built-in shelving, and semi-bay windows looking out. An additional, large storage room that can be reached from the back deck is a great bonus as well. It has 2 separate entrances in front and rear. Both spaces feature separate HVAC air Conditioning systems, water heaters, meters, and in-unit washer/dryers, & a 2-car garage that can be used by owner or rented out. The rehab & feature list is attached & video-walkthrough attached. Property is move-in ready, cash-flow happy & the perfect home for an owner-occupied investor or rental property. Property is zoned as a single family home, so please advise accordingly. Please see floorplans.
Charis Romanach
Home Hunters Chicago | West Town Team
